
Split House
Italy - 2018
Progetto Architettonico
Split House è un progetto residenziale innovativo che si distingue per la qualità architettonica e la capacità di integrarsi armoniosamente nel contesto urbano della città di Giulianova. Questo edificio, composto da due corpi principali sviluppati su tre livelli fuori terra e coronati da un quarto livello sottotetto, si caratterizza per la sua forma unica, che richiama l'iconica casa a capanna. Questa scelta progettuale consente di combinare estetica e funzionalità, creando un equilibrio tra tradizione e modernità e garantendo al contempo una perfetta integrazione con l'ambiente urbano circostante.


La configurazione architettonica di Split House si basa sul concetto di dividere e connettere. I due volumi separati, ma in dialogo continuo tra loro, danno vita a uno spazio abitativo fluido e dinamico, dove la luce naturale gioca un ruolo centrale. L'interazione tra pieni e vuoti all'interno dell'edificio permette di modulare la privacy, creando spazi aperti e luminosi nelle zone comuni, mentre nelle aree più intime si raggiunge un livello di riservatezza ottimale. Questa capacità di dialogo tra gli spazi non solo favorisce una maggiore flessibilità nell’uso degli ambienti, ma riflette anche una filosofia progettuale incentrata sul benessere abitativo.
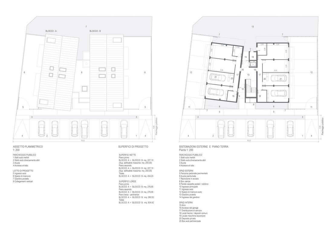
Gli spazi esterni sono progettati per favorire una transizione armoniosa tra lo spazio pubblico e quello privato. Al posto di una recinzione tradizionale, l’edificio è circondato da una fascia di parcheggi pubblici inerbiti e da due aree piantumate che si fondono con il basamento dell'edificio, rafforzando il legame visivo e funzionale tra la costruzione e il contesto urbano. L'ingresso principale, esclusivamente pedonale, si collega direttamente al marciapiede, mentre due ingressi carrabili conducono a cortili privati collegati ai box auto.
Internamente, Split House offre una vasta gamma di soluzioni abitative. Gli appartamenti, organizzati in fasce longitudinali che separano la zona giorno dalla zona notte, si caratterizzano per la flessibilità e la varietà di configurazioni disponibili. Dai bilocali (SMALL) agli appartamenti di grandi dimensioni (LARGE e X-LARGE), ogni unità è progettata per rispondere alle diverse esigenze abitative, offrendo spazi che possono essere personalizzati sia in termini di layout che di dimensioni. Al primo piano si trovano alloggi simplex di media grandezza, mentre il secondo piano ospita alloggi duplex, collegati internamente a un suggestivo piano sottotetto con travi in legno a vista.
In tutte le configurazioni abitative, la zona giorno occupa un ruolo centrale. Pensata come il cuore della vita domestica, questa area è spaziosa, luminosa e strettamente connessa agli spazi esterni grazie a grandi vetrate che amplificano la continuità visiva tra interno ed esterno. È uno spazio che invita alla socialità, all’incontro e alla condivisione, ma che allo stesso tempo rispetta le necessità di privacy e comfort, offrendo ambienti funzionali e accoglienti.
L’intero progetto di Split House rappresenta un esempio di come l'architettura contemporanea possa rispondere alle esigenze del vivere moderno. Ogni dettaglio è pensato per garantire un equilibrio tra estetica e funzionalità, creando uno spazio abitativo che coniuga flessibilità, innovazione e bellezza. Grazie alla sua modularità e alla varietà di soluzioni proposte, Split House offre una risposta personalizzata alle esigenze di ogni residente, riportando al centro della vita quotidiana la qualità dello spazio abitativo e il benessere complessivo.









